Demander un devis

Audit et analyses de risques

Code du bien-être au travail relatif à la prévention de l'incendie sur les lieux de travail (Livre. 3 - Titre-3)

Nous réalisons toutes sortes d'analyses de risques :

ATEX

Bâtiments

Compartiment

Détection

Évacuation

Incendie

Machines

Moyens d'extinction

Risques chimiques

Analyses de risques, une obligation légale

Que ce soit pour un bâtiment existant ou pour une future construction, l'analyse de risques est indispensable à la sécurité de chacun.

Nos analyses de risques sont complètes et présentent les documents suivants :

Tableau des risques

Tableau des risques

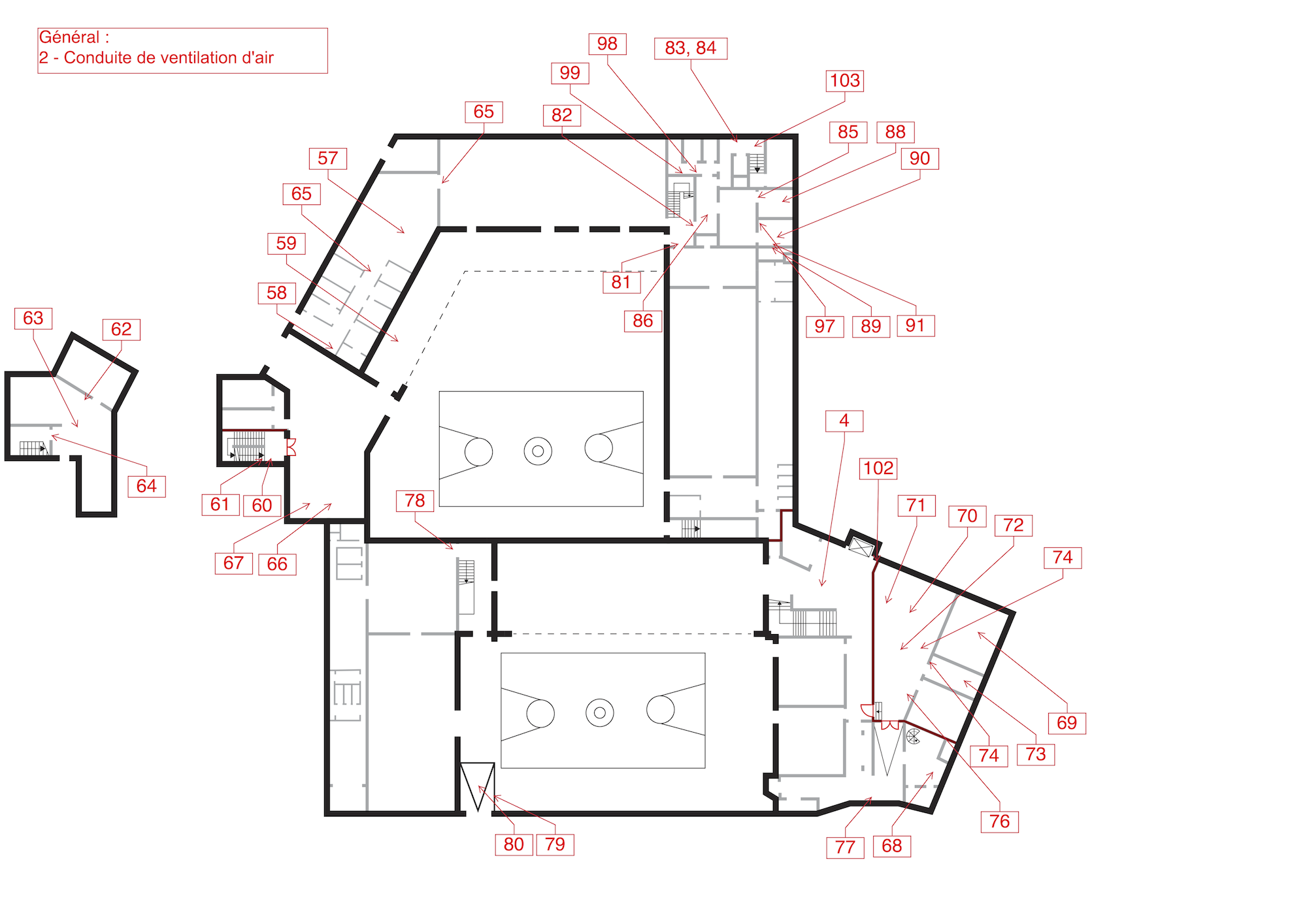
Plan annoté

Plan annoté

Plan de compartimentage

Plan de compartimentage

Syllabus photos

Syllabus photos

Rapport détaillé

Rapport détaillé

Budget

Budget

Nous employons la méthode GoldFire, mais aussi des méthodes plus spécifiques telles que FRAME, AMDEC, HAZOP, HEEPO, Ishikawa, etc.